Identifikohu për qasje më të shpejtë në ofertat më të mira. Kliko këtu nëse nuk ke një llogari.

Apartament 2+1+ Parkim ne Shitje te Univers City Tirane

2025-03-12 14:34   Real estate   Tiranë   108 Shikime Referencë: 1930

0 star

Vendndodhja: Tiranë

Çmimi: 130000 EUR


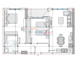
Univers City, disponojme per shitje Apartament 2+1 me siperfaqe 92.55 m2, kati 2 banim me ashensor. Organizohet ne soxhorno, 2 dhoma gjumi, korridor shperndare, tualet dhe ballkon. Apartamenti shitet se bashku me nje post parkimi me siperfaqe bruto 22.52 m2 (12.85 m2 neto). Apartamenti eshte i investuar nga pronari dhe shitet si ne foto.

Shitet 130 000 Euro

Detaje shtesë

Sip (m²)
92
Lloji
Apartament
Note: You must be logged in to post a review.