Identifikohu për qasje më të shpejtë në ofertat më të mira. Kliko këtu nëse nuk ke një llogari.

Spitali ushtarak shitet 1+1

2025-03-10 10:57   Real estate   Tiranë   82 Shikime Referencë: 1878

0 star

Vendndodhja: Tiranë

Çmimi: 71200 EUR


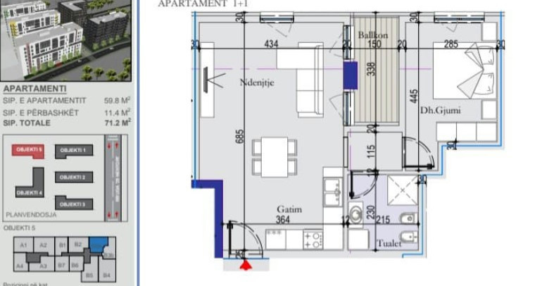
Pallat ne ndertim Kati 1 Ka Ashensor 1 Dhome Gjumi 1 Tualet Tualet me Aspirator Ne proces Hipotekimi Pa mobiluar Nuk ka kondicioner Shtrese e varfer Prona nuk ka parking te perfshire Ka ballkon Orientimi: Lindje ID PIV 11321 - € 71200  

Detaje shtesë

Sip (m²)
71
Lloji
Apartament
Note: You must be logged in to post a review.